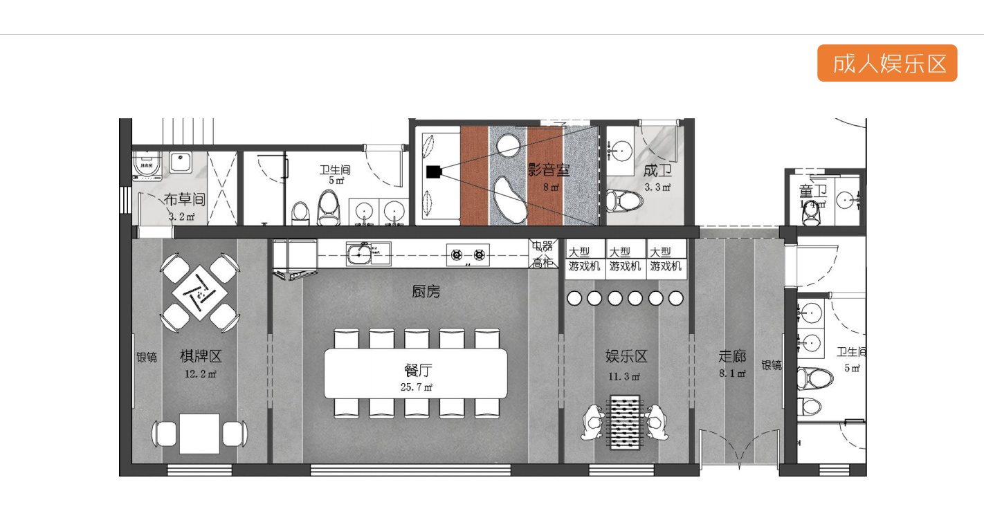
怀柔亲子民宿

  • 项目地址 / 北京
  • 空间类型 / 宾馆酒店
  • 设计师 / 李睿
  • 服务项目 / 设计与施工
  • 项目面积 / 256㎡
  • 项目周期 / 2个月天
  • 造价 / 105万


• 将现有大院改造成以亲子为主题的民宿,经营为整包形式。

• 设计上要有特点

• 合理的成本考量,为未来的经营做好铺垫