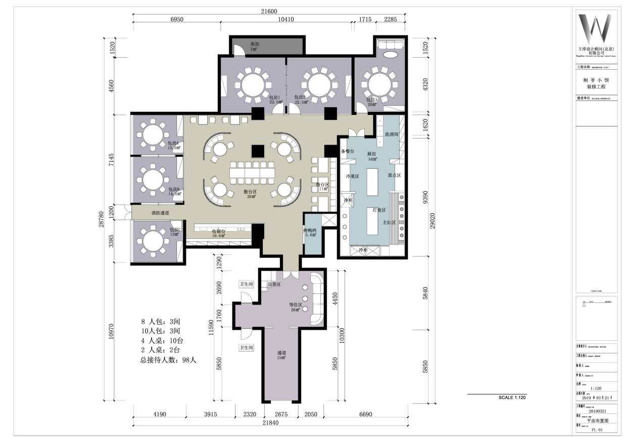
桐爷春饼店

  • 项目地址 / 北京
  • 空间类型 / 餐饮娱乐
  • 设计师 / 王淳
  • 服务项目 / 设计与施工
  • 项目面积 / 279㎡
  • 项目周期 / 2个月天
  • 造价 / 115万