发布时间: 2020-01-06 17:19:00 来源:北京百星建设工程有限公司 浏览量:1456
项目信息
项目名称:西安饭庄
占地面积:501.98平米
坐落地点:山东即墨古城
总工期:57日
项目造价:178万元
竣工时间:2020年1月9日
设计公司:西安高新区集美组设计工作室
项目现状▼


施工进度▼

2019年11月14日项目正式开工
2019年11月14日至2019年11月17日根据图纸对现有情况拆除以及拆除产生的垃圾清运。
2019年11月17日至2019年12月20日,木工施工
2019年11月17日至2019年12月5日,电工施工,满足条件即立刻进行隐蔽工程验收
2019年11月30日至2019年12月13日,瓦工施工
2019年12月1日至2020年1月5日,油漆工施工
2019年11月20日至2019年11月27日,中央空调施工
2019年11月18日至2019年11月21日,实体隔墙施工
2019年11月25日至2019年11月29日,防水施工,并做防水验收
2019年12月28日-2020年1月5日,灯具,洁具安装
2020年1月3日至2020年1月5日,软装进场布置安装
2020年1月4日至2020年1月6日,家具,厨具进场安装
2020年1月7日至2020年1月9日。整体保洁
2020年1月10日,验收

一层平面图

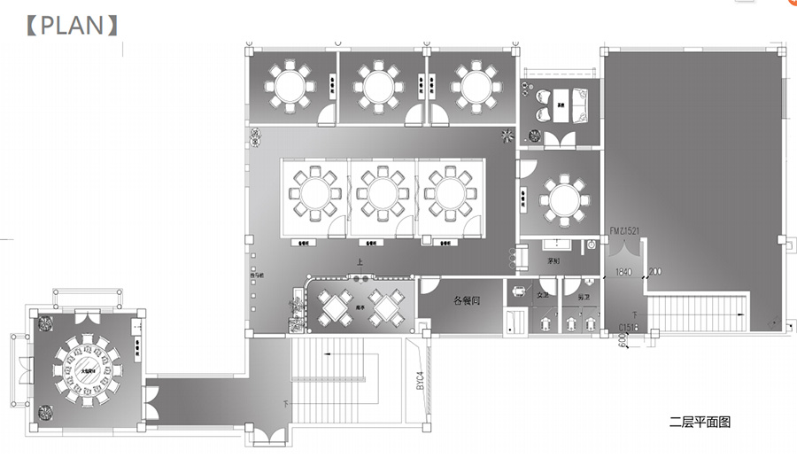
二层平面图

大堂

大堂 连廊

收银台

中堂

二楼过道

临窗 8人包

商务大包

8人套包